Projets en cours


projects
projects

Chantier de Lotissement


image

Ce chantier consiste à réaliser les travaux préparatoires de terrassement ensuite le détournement du réseau d’assainissement .

Chantier d'assinissement


image

Le projet consiste à la rénovation des collecteurs d’assainissement et de la reprise éventuelle des branchements EP EU ,

Chantier d'amenagement urbaine


image

Ce chantier concerne les travaux de voirie et la création d’espace vert pour aménager un ruedans une zone urbaine .

Projet de renforcement des reseux d'assainissement :


Plan du projet :

Image représentant un blindage type grande surface :

projects
projects

Projet d'assainissement

Le chantier consiste à effectuer l’opération remplacement les collecteurs d’assainissement des eaux usées et reprendre les branchements

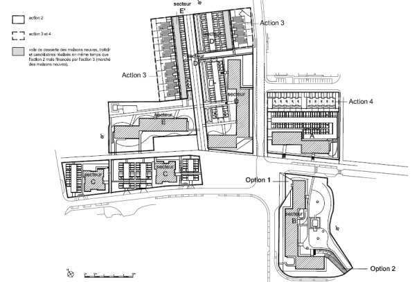
Réaménagement d'une lotissement en application des régles PMR

Plan du projet :


Défini les déférentes couches a réaliser :


image
image

Résume de projet :

  • Réaménagement d'une lotissement
  • Chantier écologique, recyclage des gravas et réduction de l'espace couvert par les enrobés en faveur de l'espaces vert
  • les ouvrages exécutés respects la réglementation PMR.