المشاريع الحالية


projects
projects

موقع التقسيم الفرعي


image

Ce chantier consiste à réaliser les travaux préparatoires de terrassement ensuite le détournement du réseau d’assainissement .

موقع الصرف الصحي


image

Le projet consiste à la rénovation des collecteurs d’assainissement et de la reprise éventuelle des branchements EP EU ,

موقع البناء الحضري


image

Ce chantier concerne les travaux de voirie et la création d’espace vert pour aménager un ruedans une zone urbaine

: مشروع تعزيز شبكة الصرف الصحي


:خطة المشروع

: صورة تمثل نوع درع مجسم مساحة كبيرة

projects
projects

Projet d'assainissement

Le chantier consiste à effectuer l’opération remplacement les collecteurs d’assainissement des eaux usées et reprendre les branchements

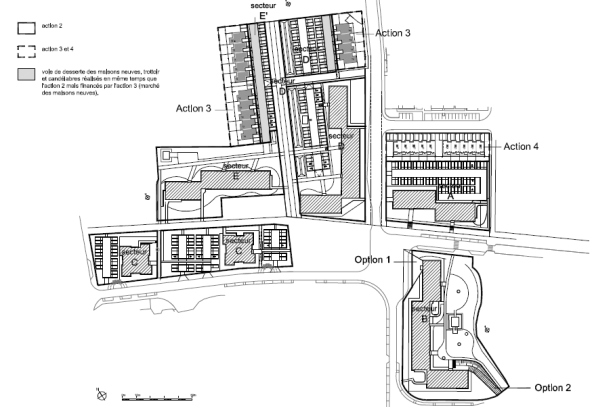
Réaménagement d'une lotissement en application des régles PMR

: Plan du projet


: Défini les déférentes couches a réaliser


image
image

: Résume de projet

  • Réaménagement d'une lotissement
  • Chantier écologique, recyclage des gravas et réduction de l'espace couvert par les enrobés en faveur de l'espaces vert
  • les ouvrages exécutés respects la réglementation PMR.